Inwestycja w końcowym etapie przygotowywania, podane informacje mogą ulec zmianie
Kupujący nie płaci prowizji!!!
PRZESTRONNY NOWOCZESNY BLIŹNIAK 200 M2 W WYSOKIM STANDARDZIE, W FANTASTYCZNEJ LOKALIZACJI, posiada wiele zalet z których najważniejsze to:
- architektura – nowoczesna, przestronna architektura z dużymi przeszkleniami, w biało-szarej kolorystyce,
- położenie – Krzekowo – w atrakcyjnym, dobrze skomunikowanym i jednocześnie spokojnym miejscu Szczecina; w pobliżu szkoły, przedszkola, sklepy, supermarkety, punkty usługowe, restauracje, ośrodki sportu i rekreacji,
- funkcjonalny, przemyślany układ pomieszczeń dający komfort użytkowania; na parterze znajduje się przestronny salon z aneksem kuchennym, z dużymi przeszkleniami i wyjściem na ogród przez okna tarasowe typu HS, WC, garderoba i garaż z pomieszczeniem gospodarczym; na piętrze są cztery pokoje, z tego trzy ponad 18 m2, pralnia, garderoba, łazienka i duży korytarz,
- dojazd oświetloną drogą z kostki polbrukowej,
- wysoki standard wykonania z zastosowaniem najlepszych materiałów – gwarantuje niskie koszty eksploatacji i bezproblemową eksploatację przez wiele lat.
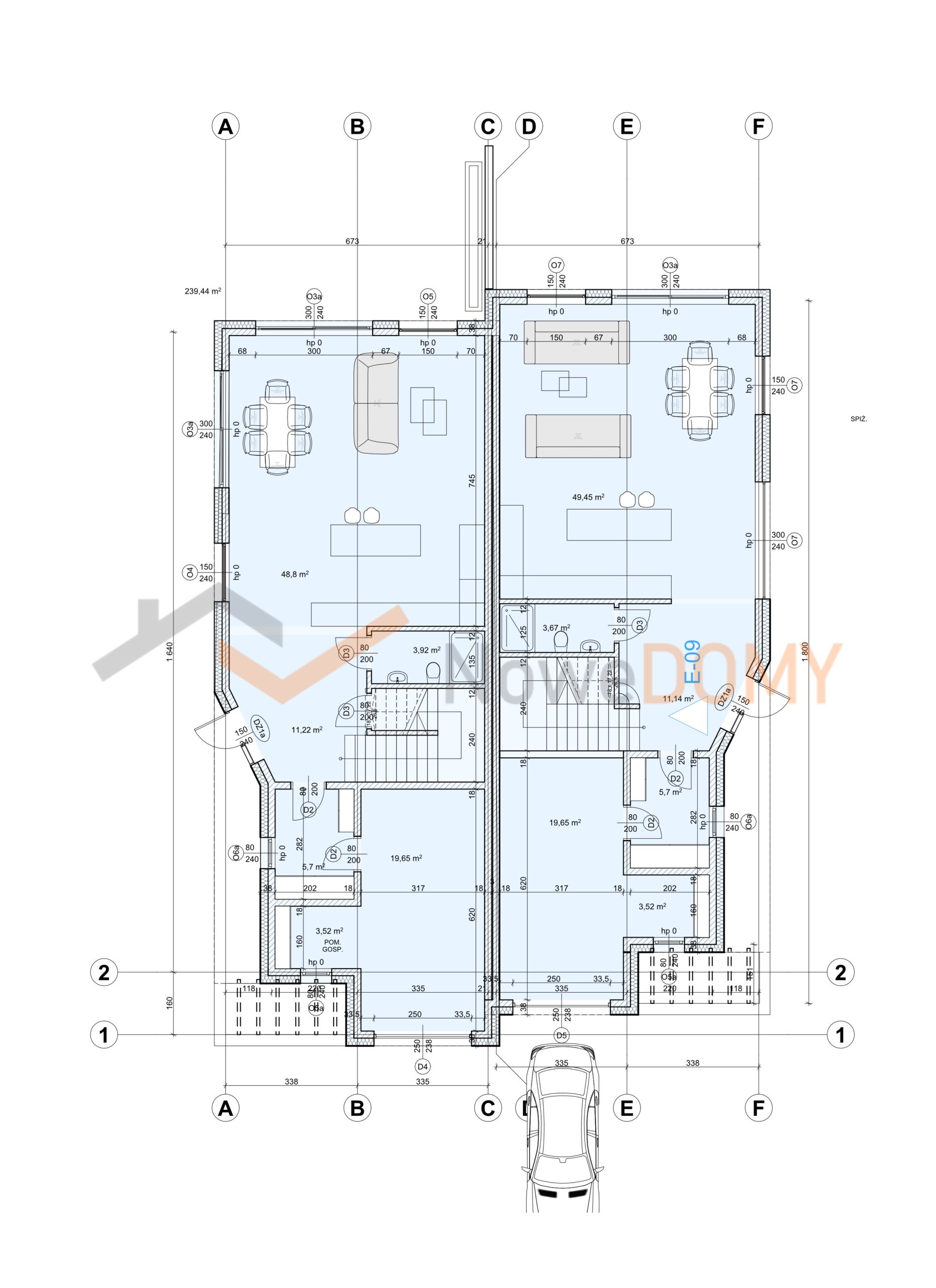
Na powierzchnię 199,8 m2 składają się:
Parter: 92,81 m2
- korytarz 11,22 m2
- salon z aneksem kuchennym 48,80 m2
- wc 3,92 m2
- garderoba 5,70 m2
- gosp. 3,52 m2
- garaż 19,65 m2
Piętro: 106,99 m2
- pokój 18,76 m2
- pokój 18,65 m2
- garderoba 2,94 m2
- łazienka 7,57 m2
- pralnia 6,27 m2
- korytarz 20,17 m2
- pokój 13,87 m2
- pokój 18,76 m2
Na powierzchnię 199,98 m2 składają się:
Parter: 93,13 m2
- korytarz 11,14 m2
- salon z aneksem kuchennym 49,45 m2
- wc 3,67 m2
- garderoba 5,70 m2
- gosp. 3,52 m2
- garaż 19,65 m2
Piętro: 106,85 m2
- pokój 18,65 m2
- pokój 18,65 m2
- garderoba 2,91 m2
- łazienka 7,57 m2
- pralnia 6,27 m2
- korytarz 20,17 m2
- pokój 13,87 m2
- pokój 18,76 m2
| Symbol | Piętra | Pokoje | Powierzchnia użytkowa m2 | Powierzchnia działki m2 | Status | Cena katalogowa |
| A | 2 | 5 | 199,80 | Dostępne | 1 799 000 zł | |
| B | 2 | 5 | 199,98 | Rezerwacja |
Zainteresowany ofertą?
Nasza firma specjalizuje się w obrocie nieruchomościami. Z nami masz pewność, że Twoja transakcja zostanie przeprowadzona szybko i profesjonalnie.
Zainteresowany ofertą?
Nasza firma specjalizuje się w obrocie nieruchomościami. Z nami masz pewność, że Twoja transakcja zostanie przeprowadzona szybko i profesjonalnie.



